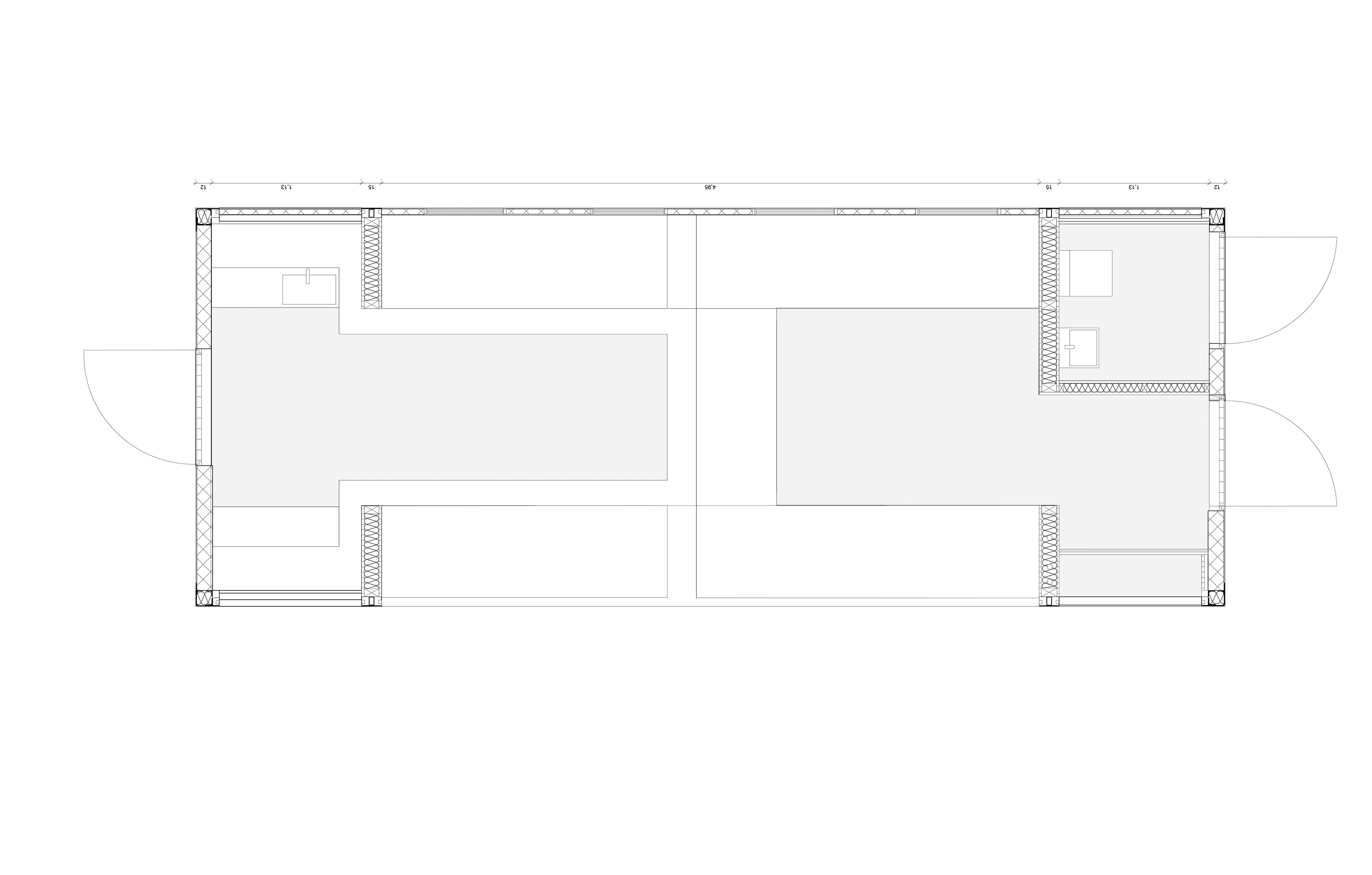
A simple steel framework as a basis gives this cafe a far different impression than that of a container construction. The simplicity of form and materiality is much more oriented to an Asian tea house than to an industrial building. The folding mechanisms on the long sides create a smooth transition between inside and outside. Polycarbonate panels allow light to shine inside even when they’re closed . The continuous bench on the outside is divided inside in a bar and guest area. The cafe should work in a university context. The building responds to this, like a Swiss army knife, very versatile: As a pure exterior or interior experience or as an exciting interplay between inside and outside, so you can still be outside inside.


